Penerangan ProdukMengapa menggunakan penindasan api hud dapur?
Memasang sistem penindasan api dapur adalah penting untuk keselamatan mana -mana dapur komersial. Peralatan memasak, minyak, dan bahan -bahan mudah terbakar yang lain dapat dengan mudah menyalakan, menyebabkan api yang dapat dengan cepat keluar dari kawalan.
Sistem penindasan api dapur direka khusus untuk mengesan dan menindas kebakaran dengan cepat di kawasan memasak, menghalang api daripada menyebarkan dan meminimumkan kerosakan. Ini boleh menjadi perbezaan antara kejadian kecil dan kejadian bencana yang boleh mengakibatkan kecederaan, kerosakan harta benda, dan juga kematian.
Selain itu, sistem penindasan kebakaran sering diperlukan oleh kod kebakaran tempatan dan syarikat insurans untuk dapur komersial. Kegagalan memasang sistem yang mencukupi boleh menyebabkan denda yang mahal, peningkatan premium insurans, dan liabiliti undang -undang sekiranya berlaku kebakaran.
Secara keseluruhannya, memasang sistem penindasan api dapur bukan sahaja penting untuk keselamatan orang yang bekerja di dapur, tetapi juga kewajipan undang -undang dan kewangan untuk mana -mana pemilik dapur atau pengendali komersial.

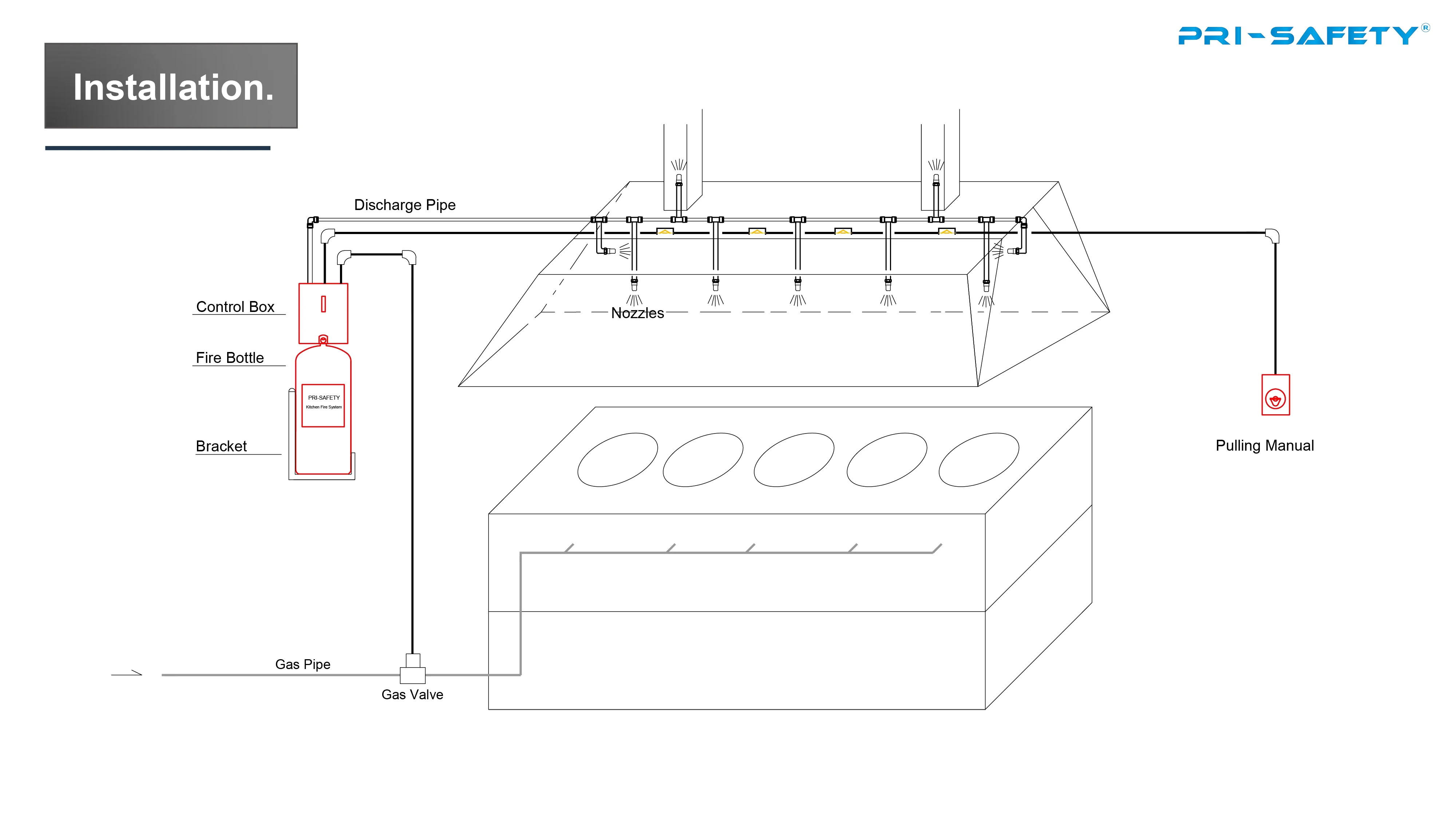
1. Prinsip sistem
Sistem penindasan kebakaran dapur mekanikal kimia basah pri-keselamatan telah direka khusus untuk melindungi dapur komersial rumah dan mengeluarkan kebakaran memasak yang disebabkan oleh wap gris orgrease (kelas F atau kelas K) dengan cepat dan cekap. Apabila kebakaran berlaku di kawasan yang dilindungi, ia dengan cepat dikesan oleh sensor alat perakam periuk. Pengesan mencetuskan mekanisme melepaskan automatik yang menggerakkan sistem - menekan tangki penyimpanan ejen dan secara automatik mematikan tenaga perkakas.
2. Spesifikasi Produk



Permohonan produk


Pembungkusan & Penghantaran

